Réf. RDOP-419

Terrain de 780m2 + Plan Topographique et Geotechnique

floor_spacem2
Surface 780 m2
Demande d'information
Prix: 95.000 €

Caractéristiques de la propriété

Zone
Urb. Río de Oro
Type de construction
Occasion
Orientation
Sud
Certification énergétique
En cours

Description de la propriété

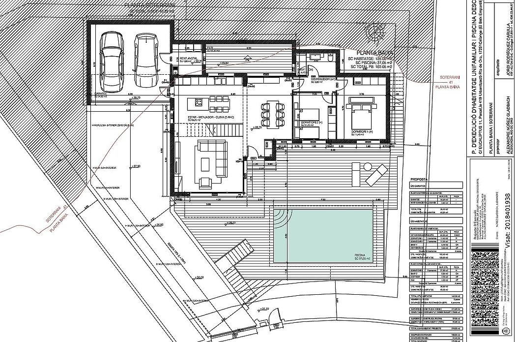
Il s'agit d'un terrain de 780 mètres carrés avec une orientation sud, ce qui signifie qu'il bénéficie d'une excellente exposition au soleil pendant une grande partie de la journée. De plus, il offre une vue imprenable sur la montagne, offrant ainsi un environnement naturel et pittoresque.La pente du terrain est considérée comme modérée, ce qui pourrait permettre une conception architecturale intéressante et la possibilité de profiter des vues panoramiques. Le plan topographique et géotechnique est déjà disponible, ce qui est un avantage car il fournit des informations précieuses sur la configuration du terrain et sa stabilité.Un avantage supplémentaire de cette offre est la possibilité de recevoir un projet pour la construction d'une maison individuelle, bien qu'il soit nécessaire de le réviser et de l'adapter à la réglementation d'urbanisme en vigueur. Cela garantira que la construction soit conforme à toutes les réglementations et exigences légales pertinentes.En résumé, ce terrain de 780 mètres carrés avec orientation sud et vue sur la montagne offre un grand potentiel pour construire une maison individuelle dans un environnement naturel et attrayant. Avec le plan topographique et géotechnique déjà réalisé et un projet de construction inclus, vous disposez d'une base solide pour commencer à développer votre projet immobilier.
Le notaire, l'enregistrement et les taxes applicables (ITP ou TVA + AJD) et autres frais inhérents à la vente ou à la location ne sont pas inclus da
Immobles visitats
floor_spacem2
Surface 131 m2
bathroom
Salles de bains 2
room
Chambres 3
parking
Parking Oui
floor_spacem2
Surface 280 m2
bathroom
Salles de bains 2
room
Chambres 5
parking
Parking Oui
floor_spacem2
Surface 320 m2
bathroom
Salles de bains 3
room
Chambres 4
parking
Parking Oui
floor_spacem2
Surface 156 m2
bathroom
Salles de bains 3
room
Chambres 4
parking
Parking Oui
left-arrow
right-arrow
info@immoriodeoro.com 972 65 29 12 611 65 08 78
This website uses proprietary and third-party cookies to improve the browsing experience as well as for analysis. By continuing browsing, we understand that you agree the use of cookies

What are cookies?

A cookie is a small file stored on the user's computer that allows us to recognize it. The set of cookies help us improve the quality of our website, allowing us to monitor which pages are useful to the website users or and which are not.

Cookies are essential for the operation of the Internet, providing innumerable advantages in the provision of interactive services, providing us with the navigation and usability of our website. Please note that cookies can not harm your computer and, if enabled, they help us identify and resolve errors.

What kind of cookies are used in this site?

Propietary cookies: those that are sent to the user's computer from a computer or domain managed by the publisher and from which provides the service requested by the user.

Third party cookies:those that are sent to the user's computer from a computer or domain not managed by the publisher but by another entity that analyzes the data collected. .

Persisting cookies: a type of cookie in which data are still stored in the terminal and can be accessed and processed by the cookie's responsible.

Analytics cookies: using web analytics to get information on the number of users accessing the site, number of pages viewed, and repetition frequency of visits, the duration, the browser used, operator who provides the service, the language used by the terminal or the city to which is assigned the IP address. Information that allows a better and more appropriate service by this website.

Accept the use of cookies.

We assume that you accept cookies. However, you can restrict, block or erase cookies from this site or any page from the browser settings.

Next you can find the main browsers help pages: